N00311 | Pronájem novostavby 2+kk s balkonem, garážovým stáním a sklepem, Praha 10-Hostivař, ul. Bratislavská

Bratislavská, 10200, Praha 15, Praha  mapa

22 000 Kč (za měsíc)

+ domovní služby 4590 Kč/měsíc + elektřina převodem

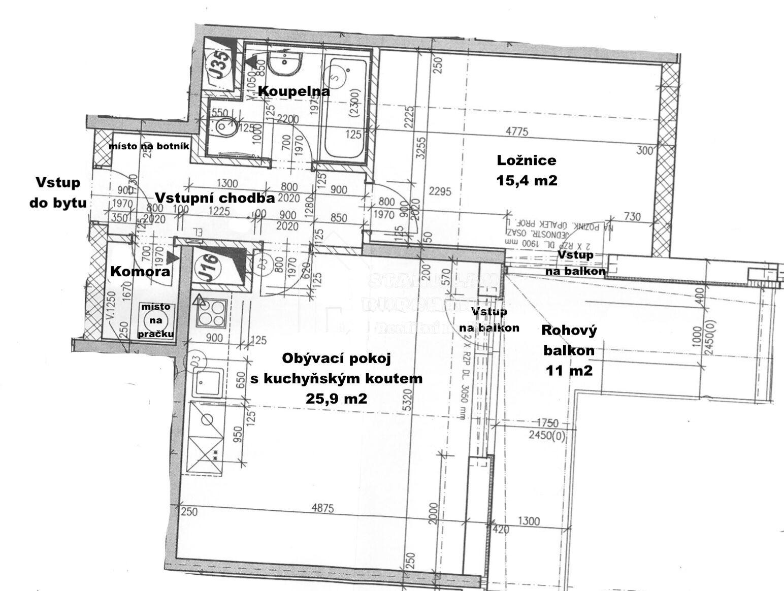
Od 4.3.2026 je Vám k dispozici ke dlouhodobému pronájmu tento hezký, nevybavený byt 2+kk, 53 m2 + balkon 11 m2, s garážovým stáním a sklepem, Praha 10-Hostivař, ul. Bratislavská.

Byt je situován v nejvyšším, 6. patře cihlové novostavby s výtahem. Obývací pokoj s kuchyňským koutem má orientaci na jih, ložnice pak na západ. Z obou pokojů je možné vstoupit na rohový balkon.

Součástí kuchyňské linky je elektrická trouba se sklokeramickou varnou deskou, digestoř s externím odtahem, myčka, vestavěná lednička s mrazákem a mikrovlnka. V koupelně je vana a WC. V bytě je též komora, kde je přípojka na pračku/sušičku.
Bezbariérový byt ano
Dispozice bytu 2+kk
Podlaží v domě 6
Počet podlaží v domě 6
Celková podlahová plocha 64 m2
Druh objektu cihlová
Stav objektu novostavba
Vlastnictví osobní
Balkón 11 m2
Sklep 4 m2
Umístění objektu klidná část obce
Doprava silnice; MHD; autobus
Elektřina Elektro - 230 V
Telekomunikace Internet
Topení Ústřední - dálkové
Odpad Kanalizace
Ostatní rozvody Kabelová televize
Energetická náročnost budovy B - Velmi úsporná
Energetický ukazatel
podle vyhlášky
č. 78/2013 Sb.
Plocha balkónu 11 m2
Počet parkovacích míst 1

Prodávající makléř

Pronájem krásného bytu o velikosti 110 m2 s terasou, velkou zahradou a garáží v blízkosti metra. Nabízíme k pronájmu krásný byt v ulici U Nikolajky. Byt má velkou vstupní halu. Pronajímá se zařízený značkovým nábytkem. V kuchyně naleznete kuchyňskou linku Sýkora s kvalitními spotřebiči značky Miele a Kuppersbusch. Obývací pokoj je zařízen Natuzzi sedačkou. Nadstandartně velká ložnice, kde je krom postele velká šatní skříň a spousta úložného prostoru. Další menší ložnice má vestavěnou skříň. Z obývacího pokoje je výstup na zahradu, která skýtá prostor pro příjemné posezení. Zahrada je dostatečně velká pro trampolínu i nadzemní bazén. Koupelna disponuje sprchovým koutem i vanou. V bytě jsou dvě WC, jedno v koupelně, další samostatně. Jednotlivé pokoje jsou neprůchozí. Podlahy jsou kryty parketami. Byt má videotelefon. Vjezd do garáže je na dálkové ovládání. Výhodou je velmi klidná lokalita, v blízkosti parku a dochozí vzdálenosti na metro, zdravotnické středisko a nákupní centrum Nový Smíchov.

Ing. Stanislav Durchánek

Telefon: 775 636 982
E-mail: Stanislav@Durchanek.cz

Kontaktní formulář